東洋宅建株式会社、川島建築~大阪/門真市/京阪~新築一戸建て・自由設計・10年保証住宅~

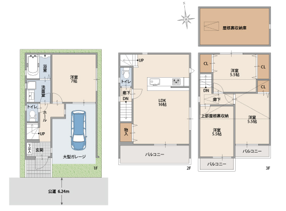
●土地面積/約52.20㎡(南向公道6.24m) ●1階面積/約37.80㎡ ●2階面積/約31.50㎡
●3階面積/約33.75㎡ ●合計面積/約103.05㎡

●所在地/大阪府門真市北岸和田3丁目276-19 ●敷地面積/約52.20㎡(南向公道6.24m)
●建延面積/103.05㎡ ●地目/宅地 ●用途地域/第2中高層住居専用地域/準防火地域
●建ぺい率/70% ●容積率/200% ●建築条件付 ●電気/関西電力(株) ●ガス/大阪ガス(株)
●上下水道/公共上下水道(門真市) ●販売価格/2,680万円(税込) ●取引態様/売主